Prodaja, Hiša, Samostojna, Ljubljana okolica

392.700 €

Opis

Na izredno mirni in sončni lokaciji v Vinjah-Dol pri Ljubljani, posredujemo pri prodaji novogradnje – samostojne hiše v 3. podaljšani gradbeni fazi. Nepremičnina se nahaja v naselju individualnih hiš, v mirnem okolju odmaknjenem od mestnega vrveža in obdanim z zelenimi površinami, gozdovi in čudovitimi razgledi.

Hiša se prodaja v tretji podaljšani fazi gradnje, kar pomeni, da bo večina dela že opravljena, finalizacijo in personalizacijo pa prepuščamo vam, da si dom uredite po vaših lastnih željah.

Stavba je zasnovano klasično, kot enodružinska hiša z modernim tlorisom, z veliko zastekljenih površin, ki nudijo povezanost notranjosti z zunanjostjo in razglede na čudovito naravo in dolino. Razprostira se v treh etažah, K+P+M. Hiša je grajena iz klasičnih opek in betona, klet je iz armiranega betona. Vgrajena bodo PVC okna – troslojna ter sekcijska daljinsko vodena garažna vrata. Fasada bo izolirana z 20 cm toplotne izolacije z dodanim zaključnim fasadnih slojem.

Skupna bruto površina stavbe s terasama, glede na načrte meri 236,68 m2, uporabne-bivalne površine pa je 144,76 m2 + 28,12 m2 (dve terasi).

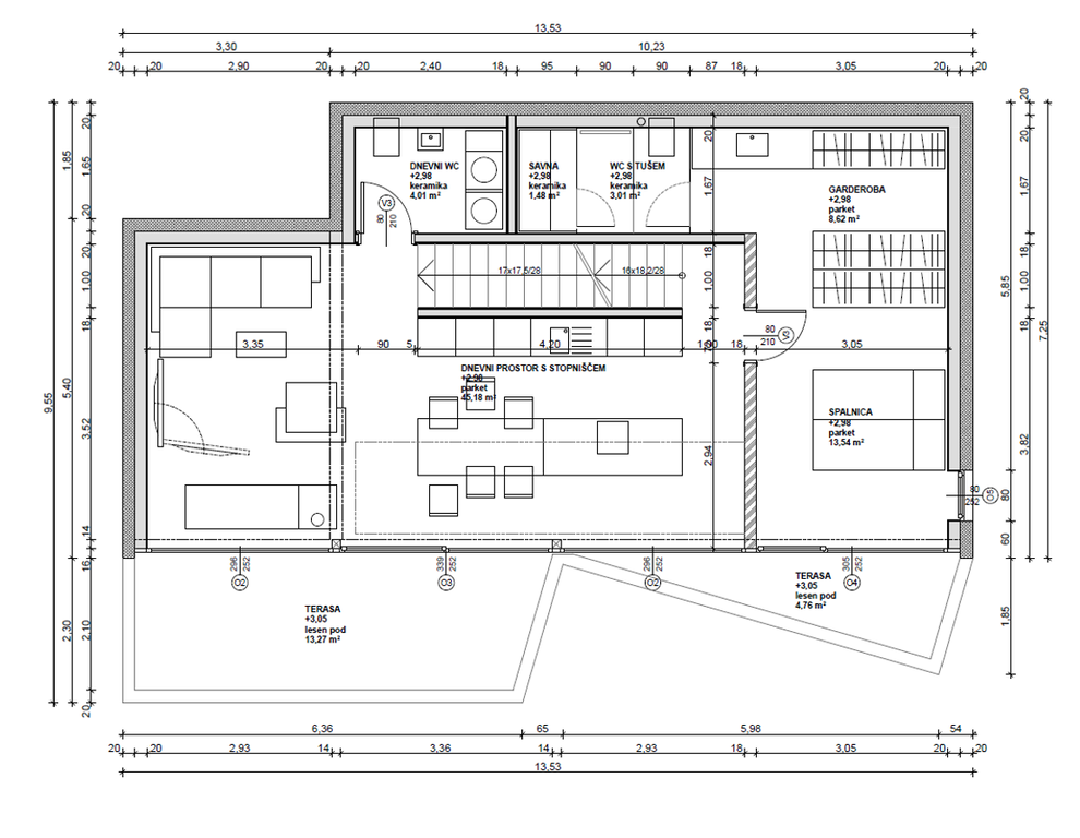
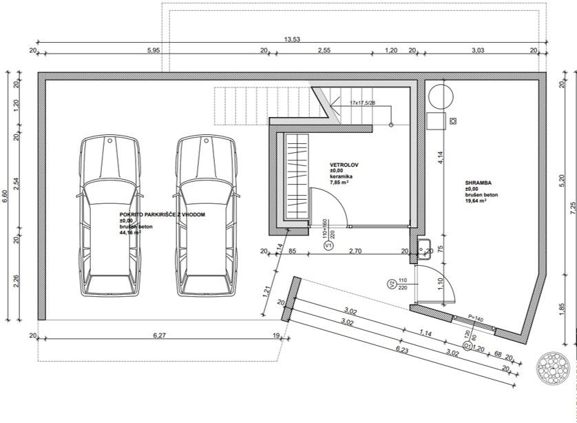
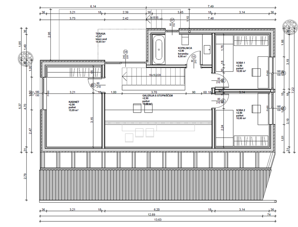
Razporeditev prostorov:

Klet: pokrita garaža 44,16 m2, vetrolov 7,85 m2  in shramba 19,64 = skupaj 71,65 m2

Pritličje: dnevni prostor s kuhinjo in stopniščem 45,18 m2 z izhodom na veliko teraso 13,27 m2, spalnica 13,54 m2, garderobna soba 8,62 m2, dnevni wc 4,01 m2, savna 1,48 m2, wc s tušem 3,01 m2 = skupaj 75,84 m2 + terasa 13,27 m2

Mansarda: galerija s stopniščem 19,90 m2, kopalnica 6,08 m2, soba 1 10 m2, soba 2 10 m2, kabinet 15,09 m2 = skupaj 61,07 m2+terasa 14,85 m2.

Parcela ima urejen vodovodni in električni priključek ter telekomunikacijski vod. Za ogrevanje je predvidena toplotna črpalka, namesto kanalizacije pa bo za odpadne vode poskrbela čistilna naprava. Za namen zalivanja vrta in zelenice ali pranja avtomobila, bo poskrbljeno z vkopanim zalogovnikom deževnice.

Ureditev okolice in dvorišča (predviden asfalt) je prepuščena željam kupca.

Dovozna pot je trenutno še makedam (s strani Ihan-a je makedam le zadnjih 100 m), vendar se že pripravlja asfaltiranje celotne poti s strani občine (v letu ali dveh).

Oddaljenost: BTC 16 km (13 min), Supernova Rudnik 23 km (16 min), Dolsko 3 km (3 min), Domžale 9 km (16 min).

Cena za hišo v tretji podaljšani fazi znaša 392.700,00 € in ne vključuje 9,5 % DDV. Skupna cena znaša 430.000,00 €.

Ne zamudite te izjemne priložnosti, da si ustvarite dom po vaših lastnih željah, v kraju, kjer se prepletata mirno predmestno življenje z modernimi udobji. Hiša Vinje je zaradi kvalitetnih materialov, svoje funkcionalnosti, premišljene izrabe prostora, odmaknjenosti in povezanosti z naravo, odlična izbira za družine in pare, ki si želijo zasebnosti, miru in poživljajočega vpliva narave .

Nepremičnina je vpisana v zemljiško knjigo in prosta bremen, ima pravnomočno gradbeno dovoljenje in projektno dokumentacijo.

Prodajalčev ponudbeni pogoj je, da mu kupec povrne del stroška prodaje v višini 2% + ddv od prodajne cene nepremičnine.

 

Vljudno vabljeni na ogled!

Dodatno

  • Dodatno
    Terasa Vrt Parkirišče Shramba Pokrito parkirišče Garaža Novogradnja
  • Priključki
    Elektrika Voda Čistilna naprava Kabelski priklj.
  • Ogrevanje
    Toplotna črpalka

Primerljive nepremičine